-
楓林逸景香荔園
銷售電話:400 876 0352 轉 0070
開盤日期:2019年8月
售樓地址:大同市市區南環西路與慶新路交匯處東100米
市區 在售尾房 普通住宅教育地產宜居生態
- 最新動態
- 楓林逸景香荔園現房尾房出售 均價5600元/㎡ [2021-05-29] 楓林逸景香荔園盛大交付 美好生活如期而至! [2020-12-12] 楓林逸景香荔園施工建設進入尾聲 即將交房! [2020-11-17]
- 樓盤詳情
-
開盤時間2019年8月交房時間2020年12月12日(具體交房時間以合同為準)付款方式支持一次性付款和商貸,不支持公積金。物業類型普通住宅建筑類別小高層 高層裝修狀況毛坯建筑面積175944.9㎡占地面積49494.22㎡住戶數1286得房率75%-80%容積率3.0綠化率30%停車位489戶型區間建面約98-136㎡樓棟數量7棟周邊學校小學:二十三校楓林小學 初中:大同市第二實驗中學交通路線市區乘坐7路公交車在萬城中心下車西北方向行走500米即到 市區乘坐32路公交車在萬城中心下車西北方向行走500米即到 市區乘坐601路公交車在萬城中心下車西北方向行走500米即到開發商大同市萬城房地產開發有限公司預售許可(2020)晉商房預售同字第02號物業公司山西鴻澤物業管理有限公司物業費待定樓盤介紹
楓林逸景·香荔園位于大同市平城區南環西路與開源街交匯處。由大同市萬城房地產開發有限公司開發建設,項目占地面積49494.22㎡ ,建筑面積175944.9㎡ ,綠化率為30%,容積率為3.0,項目共建設7棟樓,戶型區間建面約98-136㎡不等。
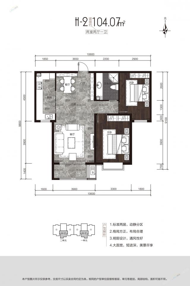
- 主力戶型
-
- 樓盤相冊
-
- 樓盤點評
-
周圍有學校嗎游客53個月前
-
現在這的房多少錢一平米游客54個月前
-
什么時候辦房本游客55個月前
展開





