-
總建面增加!大同御東這個新寫字樓數據調整
2022-03-30 15:29:23 245 李亞婷 0 -
摘要:3月初公布的大同市云州街北側將建設的綜合寫字樓蘭園大廈,數據略有調整,一起來看看吧!
項目名稱:蘭園大廈
建設單位:大同北魏置業有限公司
設計單位:中外建工程設計與顧問有限公司
項目位置:大同市云州街北側
占地面積:6788.9㎡
建筑面積:22636.43㎡
容積率:2.5
建筑密度:44.98%
停車位:170個
綠地率:20.1%

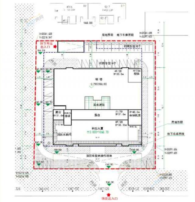
規劃圖

項目總平面圖

日照圖

項目效果圖
建筑面積從之前的22383.03㎡改為22636.43㎡,其余數據無變化,以上就是關于蘭園大廈數據調整的全部內容,想了解更多信息請持續關注0352房網吧!
- 相關資訊
- 資訊排行
