新建迎賓街道社區服務和文化活動中心 規劃出爐
發布時間:2024-09-21 來源:大同市規劃和自然資源局 編輯:栗子
手機看文章
摘要:新建大同市平城區迎賓街道社區服務和文化活動中心,現建設項目規劃許可已公示,效果圖展示,具體情況如下。
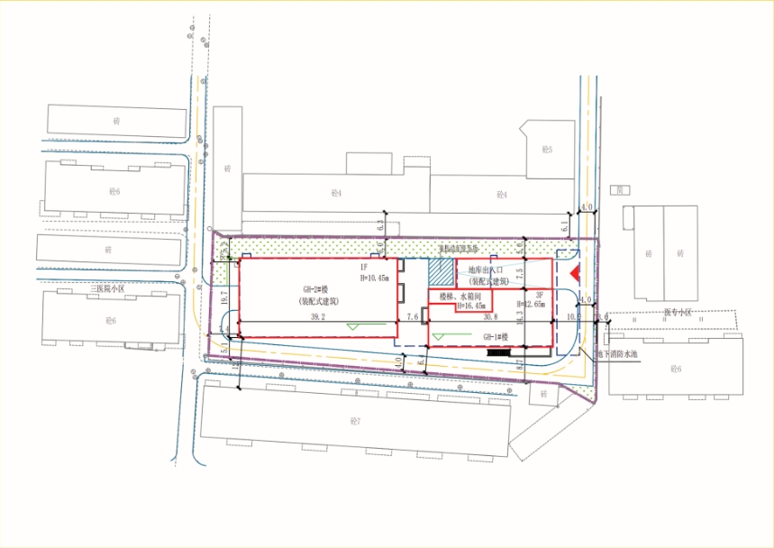
大同市平城區迎賓街道社區服務和文化活動中心
設計單位:大同市規劃設計研究總院有限責任公司
項目位置:大同市平城區文昌街南側
規劃主要技術指標
建設用地面積:3173平方米
總建筑面積:3873.24平方米
地上建筑面積:2344.97平方米
地下建筑面積:1528.27平方米
容積率:0.74
建筑密度:43.9%
地上非機動停車位:24輛
地下停車位:44輛
綠地率:6.0%%

平面布置圖


效果圖
以上就是大同市平城區迎賓街道社區服務和文化活動中心的項目規劃圖了。該項目的建設,將為社區居民提供豐富的文體娛樂活動,也將提供休閑空間。