大同文瀛湖以南 〖九如瀛湖〗建設規劃公示!
發布時間:2022-08-02 來源:0352房網 編輯:鄭倩
手機看文章
九如瀛湖預售許可證信息:(2024)晉商房預售同字第07號
本頁面的預售許可證信息為當前信息發布時所展示,僅供參考。最新信息請前往樓盤主頁查看。
摘要:大同御東新盤——九如瀛湖項目建設規劃公示,預計將在文瀛湖以南建設改善型小高層,詳情如下。
咨詢電話:400 876 0352 轉 0349

項目名稱:九如瀛湖項目
建設單位:大同市朗詩置業有限公司
設計單位:北京市建筑設計研究院有限公司
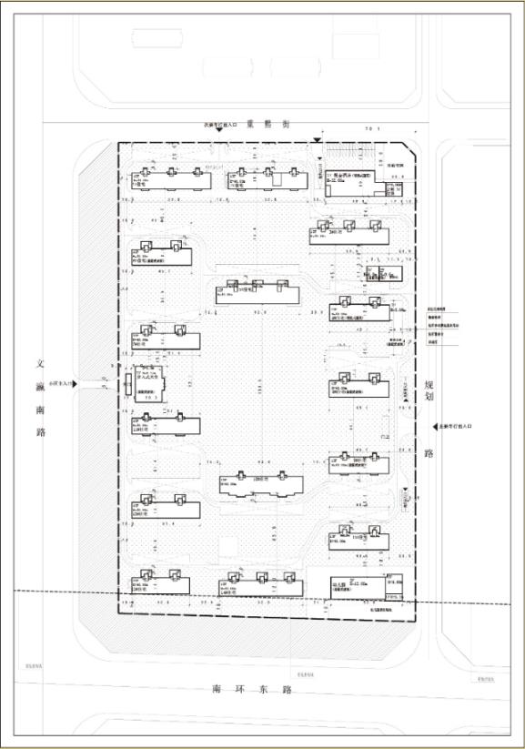
項目位置:文瀛南路東側、南環東路北側

總平面布置圖
總規劃面積:106188㎡
總建筑面積:202209.36㎡
地上建筑面積:144061.26㎡
地下建筑面積:58148.1㎡
建筑密度:18%
容積率:1.79
綠地率:35%
總停車位:1084輛

鳥瞰圖

效果圖

區位圖
從以上公示信息我們可以看到,九如瀛湖項目的定位為環湖改善小高層,目前該項目未開工建設,也暫未有售樓部的消息,0352房網將持續關注該盤實況并及時更新,敬請關注!